Sportplatzsanierung St. Blasien
Beim Helmut Hofmann Stadion wird ein zukunftsfähiger und belastbarer Sportplatz benötigt, denn der aktuelle Rasenplatz ist nur wenige Wochen im Jahr bespielbar aufgrund des schattigen und feuchten Standorts und der somit stark verkürzten Vegetationszeit. Gleichzeitig leidet der Platz durch das Bespielen im nassen Zustand. Je nach Platzaufbau, Witterung, Pflegezustand und Intensität der Spieler verträgt ein Naturrasen zwischen 6 und 12 Spielstunden je Woche, was z. T. stark überschritten wird. Es bedarf also dringend einer langfristigen Lösung durch einen Kunstrasenplatz.

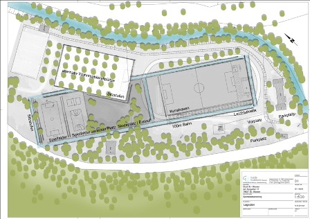
Initialpunkt und ein wichtiger Nutzer wird die Schule sein, denn neben des SV St. Blasien mit den Abteilungen Fußball, Volleyball und Leichtathletik sollen auch die Schüler dort Sport treiben können. Insgesamt entsteht ein kleines Sportzentrum mit vielseitiger sportlicher Nutzung mit großem Kunstrasenfeld und mehreren Spielsektoren: Leichtathletikfelder (Kugelstoßen, Weitsprung, Hochsprung), markierte Felder für Basketball und Volleyball, die vorhandene Aschelaufbahn und ein Beachvolleyballfeld. Die hohe Anzahl an Schülern und Fußballspielern mit unterschiedlichem Migrationshintergrund soll hier einen gemeinsamen Raum für Sport gewinnen. Die Dringlichkeit wird deutlich, wenn man die aktuellen Ausweichmöglichkeiten für das Fußballtraining betrachtet, denn es steht nur der sanierungsbedürftige Tennenplatz zur Verfügung, der als Ascheplatz bzgl. Verletzungsgefahr als negativ bewertet werden muss. Auch das Bespielen zum Fußball ist unattraktiv, denn der Ball verhält sich völlig anders als auf einem Rasenplatz. Der Tennenplatz wird den Anforderungen moderner Sportflächen insgesamt nicht mehr gerecht. Von der Sanierung des Platzes im Helmut Hofmann Stadion profitieren auch die benachbarten Vereine von Bernau und Häusern, v. a. bei schlechten Witterungsbedingungen (für Runden- und Nachholspiele), sodass er überkommunal genutzt werden kann. Spiel- sowie Trainingsausfälle werden deutlich minimiert.





Vorentwürfe Gesamtkonzept
![]() |
![]() |
![]() |
| Variante1 | Variante2 | Lageplan |










